This is a cache of https://www.paroc.com/lt-lt/structure-selector. It is a snapshot of the page as it appeared on 2026-03-29T04:37:47.946+0000.
PAROC CAD brėžinių paieška | Paroc
Skip to main content

PAROC CAD brėžinių paieškos sistema skirta projektuotojams. Dėka jos įvairių pastatų atitvarų/ konstrukcijų šiltinimo sprendimų projektavimas tampa paprastesnis. Ši sistema leidžia konstruktoriams, architektams ir kitiems statybos specialistams greitai rasti paruoštus CAD konstrukcinius brėžinius pagal paskirtį, konstrukcijos tipą ar gaminius. 

PAROC akmens vatos gaminiai plačiai naudojami pastatų atitvarų / konstrukcijų šilumos, garso ir priešgaisrinei izoliacijai – tiek naujos statybos, tiek ir renovacijos projektuose. CAD brėžinių paieškoje rasite įvairių konstrukcijų šiltinimo detales ir mazgus, įskaitant išorines sienas ir fasadus, stogus, perdangas ir pertvaras. 

Naudodamiesi PAROC CAD brėžinių paieškos sistema, galite atsisiųsti konstrukcinius brėžinius ir naudoti juos projektavimui bei dokumentacijai. Brėžiniai pateikiami pdf ir dwg formatais ir gali būti naudojami kaip projektavimo bei brėžinių dalis statybos projektuose.


Filtrai

Rodyti visus filtrus
Cm 01 Karkasinės sienos ir cokolio šiltinimo detalė
Cm 01 Karkasinės sienos ir cokolio šiltinimo detalė
Susiję produktai PAROC Cortex b, PAROC Tento, PAROC Tento t, PAROC Tento tb, PAROC ultra, PAROC ultra plus
Cm 02 Mūro sienos šiltinamos tinkuojama sistema ir cokolio šiltinimo detalė
Cm 02 Mūro sienos šiltinamos tinkuojama sistema ir cokolio šiltinimo detalė
Susiję produktai PAROC Linio 80
Cm 03 Trisluoksnio mūro sienos ir cokolio šiltinimo detalė
Cm 03 Trisluoksnio mūro sienos ir cokolio šiltinimo detalė
Susiję produktai PAROC Cortex b, PAROC Tento, PAROC Tento t, PAROC Tento tb, PAROC ultra, PAROC ultra plus
Lm 01 Lango įrengimo karkasinėje sienoje detalė
Lm 01 Lango įrengimo karkasinėje sienoje detalė
Susiję produktai PAROC Cortex b, PAROC Tento, PAROC Tento tb, PAROC ultra, PAROC ultra plus
Lm 02 Lango įrengimo mūro sienoje, šiltinamoje tinkuojama sistema su PAROC Linio 80, detalė
Lm 02 Lango įrengimo mūro sienoje, šiltinamoje tinkuojama sistema su PAROC Linio 80, detalė
Susiję produktai PAROC Linio 80
Lm 03 Lango įrengimo mūro sienoje, šiltinamoje tinkuojama sistema su plokštėmis, detalė
Lm 03 Lango įrengimo mūro sienoje, šiltinamoje tinkuojama sistema su plokštėmis, detalė
Susiję produktai PAROC Linio 10cc, PAROC Linio Pro
Lm 04 Lango įrengimo trisluoksnio mūro sienoje detalė
Lm 04 Lango įrengimo trisluoksnio mūro sienoje detalė
Susiję produktai PAROC Cortex b, PAROC Tento, PAROC Tento t, PAROC Tento tb, PAROC ultra, PAROC ultra plus
P 01 Metalinio karkaso pertvara su akmens vatos užpildu
P 01 Metalinio karkaso pertvara su akmens vatos užpildu
Susiję produktai PAROC ultra
P 02 Metalinio karkaso pertvara su akmens vatos užpildu
P 02 Metalinio karkaso pertvara su akmens vatos užpildu
Susiję produktai PAROC ultra
P 03 Metalinio karkaso pertvara su akmens vatos užpildu
P 03 Metalinio karkaso pertvara su akmens vatos užpildu
Susiję produktai PAROC ultra
P 04 Metalinio karkaso pertvara su akmens vatos užpildu
P 04 Metalinio karkaso pertvara su akmens vatos užpildu
Susiję produktai PAROC ultra
P 05 Metalinio karkaso pertvara su akmens vatos užpildu
P 05 Metalinio karkaso pertvara su akmens vatos užpildu
Susiję produktai PAROC ultra
PD 01 Perdangos virš nešildomų patalpų šiltinimo detalė
PD 01 Perdangos virš nešildomų patalpų šiltinimo detalė
Susiję produktai PAROC CGL 20cy, PAROC SSB 1
RS 01 Renovuojamos mūro sienos šiltinimo tinkuojama sistema detalė
RS 01 Renovuojamos mūro sienos šiltinimo tinkuojama sistema detalė
Susiję produktai PAROC Linio 10cc, PAROC Linio Pro
RS 02 Renovuojamos mūro sienos šiltinimo vėdinama sistema detalė (tvirtinimas kronšteinais)
RS 02 Renovuojamos mūro sienos šiltinimo vėdinama sistema detalė (tvirtinimas kronšteinais)
Susiję produktai PAROC Tento, PAROC Tento t, PAROC Tento tb
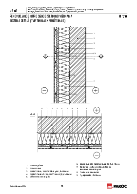
RS 03 Renovuojamos mūro sienos šiltinimo vėdinama sistema detalė (tvirtinimas kronšteinais)
RS 03 Renovuojamos mūro sienos šiltinimo vėdinama sistema detalė (tvirtinimas kronšteinais)
Susiję produktai PAROC Cortex b, PAROC Tento, PAROC Tento t, PAROC Tento tb, PAROC ultra, PAROC ultra plus
RS 04 Renovuojamos mūro sienos šiltinimo vėdinama sistema detalė (tvirtinimas tarp medinio karkaso)
RS 04 Renovuojamos mūro sienos šiltinimo vėdinama sistema detalė (tvirtinimas tarp medinio karkaso)
Susiję produktai PAROC Cortex b, PAROC Tento, PAROC Tento t, PAROC Tento tb, PAROC ultra, PAROC ultra plus
RS 05 Renovuojamos rąstų sienos šiltinimo detalė
RS 05 Renovuojamos rąstų sienos šiltinimo detalė
Susiję produktai PAROC Cortex b, PAROC Tento, PAROC Tento t, PAROC Tento tb, PAROC ultra, PAROC ultra plus
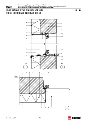
RSm 01 Lango šiltinimo detalė renovuojamoje mūro sienoje, kai šiltinama tinkuojama sistema
RSm 01 Lango šiltinimo detalė renovuojamoje mūro sienoje, kai šiltinama tinkuojama sistema
Susiję produktai PAROC Linio 10cc, PAROC Linio 15, PAROC Linio Pro
RSm 02 Lango šiltinimo detalė renovuojamoje mūro sienoje, kai šiltinama tinkuojama sistema
RSm 02 Lango šiltinimo detalė renovuojamoje mūro sienoje, kai šiltinama tinkuojama sistema
Susiję produktai PAROC Linio 10cc, PAROC Linio Pro
RSm 03 Lango šiltinimo detalė renovuojamoje mūro sienoje, kai šiltinama vėdinama sistema
RSm 03 Lango šiltinimo detalė renovuojamoje mūro sienoje, kai šiltinama vėdinama sistema
Susiję produktai PAROC Cortex b, PAROC Tento, PAROC Tento t, PAROC Tento tb, PAROC ultra, PAROC ultra plus
RSm 04 Balkono šiltinimo detalė renovuojamoje mūro sienoje, kai šiltinama vėdinama sistema
RSm 04 Balkono šiltinimo detalė renovuojamoje mūro sienoje, kai šiltinama vėdinama sistema
Susiję produktai PAROC Cortex b, PAROC Tento, PAROC Tento t, PAROC Tento tb, PAROC ultra, PAROC ultra plus
RSm 05 Balkono šiltinimo detalė renovuojamoje mūro sienoje, kai šiltinama tinkuojama sistema
RSm 05 Balkono šiltinimo detalė renovuojamoje mūro sienoje, kai šiltinama tinkuojama sistema
Susiję produktai PAROC Linio 10cc, PAROC Linio Pro
RSm 06 Renovuojamos mūro sienos šiltinamos vėdinama sistema ir cokolio šiltinimo detalė
RSm 06 Renovuojamos mūro sienos šiltinamos vėdinama sistema ir cokolio šiltinimo detalė
Susiję produktai PAROC CGL 20cy, PAROC Cortex b, PAROC Tento, PAROC Tento t, PAROC Tento tb, PAROC ultra, PAROC ultra plus
RSm 07 Renovuojamos mūro sienos šiltinamos tinkuojama sistema ir cokolio šiltinimo detalė
RSm 07 Renovuojamos mūro sienos šiltinamos tinkuojama sistema ir cokolio šiltinimo detalė
Susiję produktai PAROC CGL 20cy, PAROC Linio 10cc, PAROC Linio Pro
RSS 01 Renovuojamo šlaitinio stogo su čerpių danga ir difuzine plėvele šiltinimo detalė
RSS 01 Renovuojamo šlaitinio stogo su čerpių danga ir difuzine plėvele šiltinimo detalė
Susiję produktai PAROC ultra, PAROC ultra plus
RSS 02 Renovuojamo šaltos pastogės šiltinimo detalė ant g/b perdangos
RSS 02 Renovuojamo šaltos pastogės šiltinimo detalė ant g/b perdangos
Susiję produktai PAROC ultra
RSS 03 Renovuojamo šaltos pastogės šiltinimo detalė ant medinės perdangos
RSS 03 Renovuojamo šaltos pastogės šiltinimo detalė ant medinės perdangos
Susiję produktai PAROC ultra
RSS 04 Renovuojamo plokščiojo stogo šiltinimo detalė
RSS 04 Renovuojamo plokščiojo stogo šiltinimo detalė
Susiję produktai PAROC ROB 60, PAROC ROB 80, PAROC ROS 30, PAROC ROS 50
RSSm 01 Renovuojamo plokščiojo stogo karnizo šiltinimo detalė
RSSm 01 Renovuojamo plokščiojo stogo karnizo šiltinimo detalė
Susiję produktai PAROC Cortex b, PAROC ROB 60, PAROC ROB 80, PAROC ROS 30, PAROC Tento, PAROC Tento t, PAROC Tento tb, PAROC ultra, PAROC ultra plus
RSSm 02 Renovuojamo plokščiojo stogo karnizo šiltinimo detalė
RSSm 02 Renovuojamo plokščiojo stogo karnizo šiltinimo detalė
Susiję produktai PAROC Linio 10cc, PAROC Linio Pro, PAROC ROB 60, PAROC ROB 80, PAROC ROS 30, PAROC ultra, PAROC ultra plus
RSSm 03 Renovuojamo plokščiojo stogo parapeto šiltinimo detalė
RSSm 03 Renovuojamo plokščiojo stogo parapeto šiltinimo detalė
Susiję produktai PAROC Cortex b, PAROC ROB 60, PAROC ROB 80, PAROC ROS 30, PAROC ROS 50, PAROC Tento, PAROC Tento t, PAROC Tento tb, PAROC ultra, PAROC ultra plus
RSSm 04 Renovuojamo plokščiojo stogo parapeto šiltinimo detalė
RSSm 04 Renovuojamo plokščiojo stogo parapeto šiltinimo detalė
Susiję produktai PAROC Linio 10cc, PAROC Linio Pro, PAROC ROB 60, PAROC ROB 80, PAROC ROS 30, PAROC ROS 50, PAROC ultra, PAROC ultra plus
RSSm 05 Renovuojamo plokščiojo stogo šiltinimo detalė ties stovu
RSSm 05 Renovuojamo plokščiojo stogo šiltinimo detalė ties stovu
Susiję produktai PAROC ROB 60, PAROC ROB 80, PAROC ROS 30, PAROC ROS 50
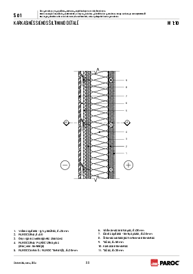
S 01 Karkasinės sienos šiltinimo detalė
S 01 Karkasinės sienos šiltinimo detalė
Susiję produktai PAROC Cortex b, PAROC Tento, PAROC Tento t, PAROC Tento tb, PAROC ultra, PAROC ultra plus
S 02 Mūro sienos šiltinimo tinkuojama sistema detalė
S 02 Mūro sienos šiltinimo tinkuojama sistema detalė
Susiję produktai PAROC Linio 80
S 03 Mūro sienos šiltinimo tinkuojama sistema su keraminių plytelių apdaila detalė
S 03 Mūro sienos šiltinimo tinkuojama sistema su keraminių plytelių apdaila detalė
Susiję produktai PAROC Linio 80
S 04 Mūro sienos šiltinimo tinkuojama sistema detalė
S 04 Mūro sienos šiltinimo tinkuojama sistema detalė
Susiję produktai PAROC Linio 10cc, PAROC Linio Pro
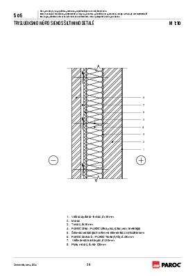
S 05 Trisluoksnio mūro sienos šiltinimo detalė
S 05 Trisluoksnio mūro sienos šiltinimo detalė
Susiję produktai PAROC Cortex b, PAROC Tento, PAROC Tento t, PAROC Tento tb, PAROC ultra, PAROC ultra plus
S 06 Mūro sienos šiltinimo vėdinama sistema detalė (tvirtinimas plieno strypais)
S 06 Mūro sienos šiltinimo vėdinama sistema detalė (tvirtinimas plieno strypais)
Susiję produktai PAROC Cortex b, PAROC Tento, PAROC Tento t, PAROC Tento tb, PAROC ultra, PAROC ultra plus
S 07 Mūro sienos šiltinimo vėdinama sistema detalė (tvirtinimas plieno strypais)
S 07 Mūro sienos šiltinimo vėdinama sistema detalė (tvirtinimas plieno strypais)
Susiję produktai PAROC Tento, PAROC Tento t, PAROC Tento tb
S 08 Mūro sienos šiltinimo vėdinama sistema detalė (tvirtinimas kronšteinais)
S 08 Mūro sienos šiltinimo vėdinama sistema detalė (tvirtinimas kronšteinais)
Susiję produktai PAROC Tento, PAROC Tento t, PAROC Tento tb
S 09 Mūro sienos šiltinimo vėdinama sistema detalė (tvirtinimas kronšteinais)
S 09 Mūro sienos šiltinimo vėdinama sistema detalė (tvirtinimas kronšteinais)
Susiję produktai PAROC Cortex b, PAROC Tento, PAROC Tento t, PAROC Tento tb, PAROC ultra, PAROC ultra plus
SS 01 Šlaitinio stogo su čerpių danga ir akmens vatos apsauga nuo vėjo šiltinimo detalė
SS 01 Šlaitinio stogo su čerpių danga ir akmens vatos apsauga nuo vėjo šiltinimo detalė
Susiję produktai PAROC Tento, PAROC Tento t, PAROC Tento tb, PAROC ultra, PAROC ultra plus
SS 02 Šlaitinio stogo su bituminių čerpių danga ir akmens vatos apsauga nuo vėjo šiltinimo detalė
SS 02 Šlaitinio stogo su bituminių čerpių danga ir akmens vatos apsauga nuo vėjo šiltinimo detalė
Susiję produktai PAROC Tento, PAROC Tento t, PAROC Tento tb, PAROC ultra, PAROC ultra plus
SS 03 Šlaitinio stogo su čerpių danga ir difuzine plėvele šiltinimo detalė
SS 03 Šlaitinio stogo su čerpių danga ir difuzine plėvele šiltinimo detalė
Susiję produktai PAROC ultra, PAROC ultra plus
SS 04 Šlaitinio stogo su bituminių čerpių danga ir difuzine plėvele šiltinimo detalė
SS 04 Šlaitinio stogo su bituminių čerpių danga ir difuzine plėvele šiltinimo detalė
Susiję produktai PAROC ultra, PAROC ultra plus
SS 05 Medinės perdangos šiltinimo detalė esant šaltai pastogei
SS 05 Medinės perdangos šiltinimo detalė esant šaltai pastogei
Susiję produktai PAROC ultra
SS 06 Gb perdangos šiltinimo detalė esant šaltai pastogei
SS 06 Gb perdangos šiltinimo detalė esant šaltai pastogei
Susiję produktai PAROC Solid, PAROC ultra
SS 07 Plokščiojo stogo ant gelžbetoninių plokščių šiltinimo detalė
SS 07 Plokščiojo stogo ant gelžbetoninių plokščių šiltinimo detalė
Susiję produktai PAROC ROB 60, PAROC ROB 80, PAROC ROS 30, PAROC ROU 60 5
SS 08 Plokščiojo stogo ant profiliuotos skardos pakloto šiltinimo detalė
SS 08 Plokščiojo stogo ant profiliuotos skardos pakloto šiltinimo detalė
Susiję produktai PAROC ROB 60, PAROC ROB 80, PAROC ROS 30, PAROC ROU 60 5
SS 09 Plokščiojo stogo ant gelžbetoninių plokščių šiltinimo detalė
SS 09 Plokščiojo stogo ant gelžbetoninių plokščių šiltinimo detalė
Susiję produktai PAROC ROB 60, PAROC ROB 80, PAROC ROS 30
SS 10 Plokščiojo stogo ant profiliuotos skardos pakloto šiltinimo detalė
SS 10 Plokščiojo stogo ant profiliuotos skardos pakloto šiltinimo detalė
Susiję produktai PAROC ROB 60, PAROC ROB 80, PAROC ROS 30
SSm 01 Karkasinės sienos ir šlaitinio stogo su čerpių danga ir difuzine plėvele karnizo šiltinimo detalė
SSm 01 Karkasinės sienos ir šlaitinio stogo su čerpių danga ir difuzine plėvele karnizo šiltinimo detalė
Susiję produktai PAROC Cortex b, PAROC Tento, PAROC Tento t, PAROC Tento tb, PAROC ultra, PAROC ultra plus
SSm 02 Karkasinės sienos ir šlaitinio stogo su čerpių danga ir difuzine plėvele viršutinio karnizo šiltinimo detalė
SSm 02 Karkasinės sienos ir šlaitinio stogo su čerpių danga ir difuzine plėvele viršutinio karnizo šiltinimo detalė
Susiję produktai PAROC Cortex b, PAROC Tento, PAROC Tento t, PAROC Tento tb, PAROC ultra, PAROC ultra plus
SSm 03 Karkasinės sienos ir šlaitinio stogo su čerpių danga ir akmens vatos apsauga nuo vėjo karnizo šiltinimo detalė
SSm 03 Karkasinės sienos ir šlaitinio stogo su čerpių danga ir akmens vatos apsauga nuo vėjo karnizo šiltinimo detalė
Susiję produktai PAROC Cortex b, PAROC Tento, PAROC Tento t, PAROC Tento tb, PAROC ultra, PAROC ultra plus
SSm 04 Karkasinės sienos ir šlaitinio stogo su šalta palėpe karnizo šiltinimo detalė
SSm 04 Karkasinės sienos ir šlaitinio stogo su šalta palėpe karnizo šiltinimo detalė
Susiję produktai PAROC Cortex b, PAROC Tento, PAROC Tento t, PAROC Tento tb, PAROC ultra, PAROC ultra plus
SSm 05 Mūro sienos šiltinamos tinkuojama sistema ir šlaitinio stogo su čerpių danga ir difuzine plėvele karnizo šiltinimo detalė
SSm 05 Mūro sienos šiltinamos tinkuojama sistema ir šlaitinio stogo su čerpių danga ir difuzine plėvele karnizo šiltinimo detalė
Susiję produktai PAROC Linio 10cc, PAROC Linio Pro, PAROC ultra, PAROC ultra plus
SSm 06 Mūro sienos šiltinamos tinkuojama sistema ir šlaitinio stogo su čerpių danga ir difuzine plėvele viršutinio karnizo šiltinimo detalė
SSm 06 Mūro sienos šiltinamos tinkuojama sistema ir šlaitinio stogo su čerpių danga ir difuzine plėvele viršutinio karnizo šiltinimo detalė
Susiję produktai PAROC Linio 80, PAROC ultra, PAROC ultra plus
SSm 07 Mūro sienos šiltinamos tinkuojama sistema ir šlaitinio stogo su čerpių danga ir difuzine plėvele  viršutinio karnizo šiltinimo detalė
SSm 07 Mūro sienos šiltinamos tinkuojama sistema ir šlaitinio stogo su čerpių danga ir difuzine plėvele viršutinio karnizo šiltinimo detalė
Susiję produktai PAROC Linio 10cc, PAROC Linio Pro, PAROC ultra, PAROC ultra plus
SSm 08 Mūro sienos šiltinamos tinkuojama sistema ir šlaitinio stogo su šalta palėpe karnizo šiltinimo detalė
SSm 08 Mūro sienos šiltinamos tinkuojama sistema ir šlaitinio stogo su šalta palėpe karnizo šiltinimo detalė
Susiję produktai PAROC Linio 10cc, PAROC Linio Pro, PAROC ultra
SSm 09 Trisluoksnio mūro sienos ir šlaitinio stogo su čerpių danga ir difuzine plėvele karnizo šiltinimo detalė
SSm 09 Trisluoksnio mūro sienos ir šlaitinio stogo su čerpių danga ir difuzine plėvele karnizo šiltinimo detalė
Susiję produktai PAROC Cortex b, PAROC Tento, PAROC Tento t, PAROC Tento tb, PAROC ultra, PAROC ultra plus
SSm 10 Trisluoksnio mūro sienos ir šlaitinio stogo su čerpių danga ir difuzine plėvele viršutinio karnizo šiltinimo detalė
SSm 10 Trisluoksnio mūro sienos ir šlaitinio stogo su čerpių danga ir difuzine plėvele viršutinio karnizo šiltinimo detalė
Susiję produktai PAROC Cortex b, PAROC Tento, PAROC Tento t, PAROC Tento tb, PAROC ultra, PAROC ultra plus
SSm 11 Trisluoksnio mūro sienos ir šlaitinio stogo su šalta palėpe karnizo šiltinimo detalė
SSm 11 Trisluoksnio mūro sienos ir šlaitinio stogo su šalta palėpe karnizo šiltinimo detalė
Susiję produktai PAROC Cortex b, PAROC Tento, PAROC Tento t, PAROC Tento tb, PAROC ultra, PAROC ultra plus
SSm 12 Mūro sienos šiltinamos vėdinama sistema (tvirtinimas strypais) ir šlaitinio stogo su čerpių danga ir difuzine plėvele karnizo šiltinimo detalė
SSm 12 Mūro sienos šiltinamos vėdinama sistema (tvirtinimas strypais) ir šlaitinio stogo su čerpių danga ir difuzine plėvele karnizo šiltinimo detalė
Susiję produktai PAROC Cortex b, PAROC Tento, PAROC Tento t, PAROC Tento tb, PAROC ultra, PAROC ultra plus
SSm 13 Mūro sienos šiltinamos vėdinama sistema (tvirtinimas strypais) ir šlaitinio stogo su čerpių danga ir difuzine plėvele viršutinio karnizo šiltinimo detalė
SSm 13 Mūro sienos šiltinamos vėdinama sistema (tvirtinimas strypais) ir šlaitinio stogo su čerpių danga ir difuzine plėvele viršutinio karnizo šiltinimo detalė
Susiję produktai PAROC Cortex b, PAROC Tento, PAROC Tento t, PAROC Tento tb, PAROC ultra, PAROC ultra plus
SSm 14 Mūro sienos šiltinamos vėdinama sistema (tvirtinimas strypais) ir šlaitinio stogo su šalta palėpe karnizo šiltinimo detalė
SSm 14 Mūro sienos šiltinamos vėdinama sistema (tvirtinimas strypais) ir šlaitinio stogo su šalta palėpe karnizo šiltinimo detalė
Susiję produktai PAROC Cortex b, PAROC Tento, PAROC Tento t, PAROC Tento tb, PAROC ultra, PAROC ultra plus
SSm 15 Mūro sienos šiltinamos vėdinama sistema (tvirtinimas kronšteinais) ir šlaitinio stogo su čerpių danga ir difuzine plėvele karnizo šiltinimo detalė
SSm 15 Mūro sienos šiltinamos vėdinama sistema (tvirtinimas kronšteinais) ir šlaitinio stogo su čerpių danga ir difuzine plėvele karnizo šiltinimo detalė
Susiję produktai PAROC Cortex b, PAROC Tento, PAROC Tento t, PAROC Tento tb, PAROC ultra, PAROC ultra plus
SSm 16 Mūro sienos šiltinamos vėdinama sistema (tvirtinimas kronšteinais) ir šlaitinio stogo su čerpių danga ir difuzine plėvele viršutinio karnizo šiltinimo detalė
SSm 16 Mūro sienos šiltinamos vėdinama sistema (tvirtinimas kronšteinais) ir šlaitinio stogo su čerpių danga ir difuzine plėvele viršutinio karnizo šiltinimo detalė
Susiję produktai PAROC Cortex b, PAROC Tento, PAROC Tento t, PAROC Tento tb, PAROC ultra, PAROC ultra plus
SSm 17 Mūro sienos šiltinamos tinkuojama sistema ir plokščiojo stogo parapeto šiltinimo detalė
SSm 17 Mūro sienos šiltinamos tinkuojama sistema ir plokščiojo stogo parapeto šiltinimo detalė
Susiję produktai PAROC Linio 10cc, PAROC Linio Pro, PAROC ROB 60, PAROC ROB 80, PAROC ROS 30, PAROC ROU 60 5
SSm 18 Mūro sienos šiltinamos vėdinama sistema ir plokščiojo stogo parapeto šiltinimo detalė
SSm 18 Mūro sienos šiltinamos vėdinama sistema ir plokščiojo stogo parapeto šiltinimo detalė
Susiję produktai PAROC Cortex b, PAROC ROB 60, PAROC ROB 80, PAROC ROS 30, PAROC ROU 60 5, PAROC Tento, PAROC Tento t, PAROC Tento tb, PAROC ultra, PAROC ultra plus
SSm 19 Šlaitinio stogo kraigo su čerpių danga ir difuzine plėvele šiltinimo detalė
SSm 19 Šlaitinio stogo kraigo su čerpių danga ir difuzine plėvele šiltinimo detalė
Susiję produktai PAROC ultra, PAROC ultra plus
SSm 20 Šlaitinio stogo kraigo su čerpių danga ir difuzine plėvele šiltinimo detalė
SSm 20 Šlaitinio stogo kraigo su čerpių danga ir difuzine plėvele šiltinimo detalė
Susiję produktai PAROC ultra, PAROC ultra plus
TG 01 Smūgio garso izoliacija tarpaukštinėje perdangoje
TG 01 Smūgio garso izoliacija tarpaukštinėje perdangoje
Susiję produktai PAROC SSB 1
TG 02 Smūgio garso izoliacija tarpaukštinėje perdangoje
TG 02 Smūgio garso izoliacija tarpaukštinėje perdangoje
Susiję produktai PAROC SSB 1
TGm 01 Smūgio garso izoliacija tarpaukštinėje perdangoje
TGm 01 Smūgio garso izoliacija tarpaukštinėje perdangoje
Susiję produktai PAROC SSB 1