This is a cache of https://www.paroc.com/pl-pl/structure-selector. It is a snapshot of the page as it appeared on 2026-04-05T02:19:50.143+0000.
Rysunki CAD <strong>paro</strong>C | <strong>paro</strong>c Skip to main content

Skorzystaj z odświeżonego narzędzia paroC Structure Selector! 

Łatwe w obsłudze narzędzie paroC Structure Selector upraszcza projektowanie izolacji i przegród budowlanych o różnym zastosowaniu. Serwis ten umożliwia konstruktorom, architektom oraz innym specjalistom z branży budowlanej wyszukiwanie gotowych rysunków detali CAD w oparciu o ich przeznaczenie, klasyfikację ogniową i akustyczną, współczynnik przenikania ciepła (U) lub typ konstrukcji.

Wełna kamienna paroC sprawdza się w szerokiej gamie rozwiązań z zakresu izolacji termicznej, akustycznej i przeciwpożarowej budynków, zarówno w obiektach nowo wznoszonych, jak i modernizowanych. Narzędzie Structure Selector wspiera proces projektowania, udostępniając czytelne i aktualne detale dla różnego rodzaju konstrukcji, takich jak ściany zewnętrzne, dachy, podłogi, ścianki działowe czy systemy elewacyjne.

Z poziomu narzędzia Structure Selector można bezpośrednio pobierać rysunki do wykorzystania w projektach i dokumentacji technicznej. Są one dostępne w formatach PDF oraz DWG i mogą stanowić integralny element dokumentacji projektowej i rysunków CAD tworzonych dla inwestycji budowlanych.


Filtry

Dach skośny ocieplony o płytami PAROC Solid-PAROC Ultra - PAROC Ultra Plus - połączenie z zewnętrzną ścianą murowaną
Dach skośny ocieplony o płytami paroC Solid-paroC Ultra - paroC Ultra Plus - połączenie z zewnętrzną ścianą murowaną
Dach skośny ocieplony płytami PAROC Solid-PAROC Ultra- PAROC Ultra Plus-połączenie z zewnętrzbną ścianą szkieletową
Dach skośny ocieplony płytami paroC Solid-paroC Ultra- paroC Ultra Plus-połączenie z zewnętrzbną ścianą szkieletową
Dach skośny z izolacją PAROC Solid, pokryty dachówkami
Dach skośny z izolacją paroC Solid, pokryty dachówkami
Dach skośny z izolacją PAROC Solid, pokryty dachówkami, z wartswą wiatrochronną (PAROC Cotrex, PAROC WAS 25)
Dach skośny z izolacją paroC Solid, pokryty dachówkami, z wartswą wiatrochronną (paroC Cotrex, paroC WAS 25)
Dach skośny z izolacją PAROC Solid, z poszyciem z desek i pokryciem papy
Dach skośny z izolacją paroC Solid, z poszyciem z desek i pokryciem papy
Dach skośny z izolacją PAROC Ultra, pokryty dachówkami, z warstwą wiatrochronną (PAROC Cortex, PAROC WAS 25)
Dach skośny z izolacją paroC Ultra, pokryty dachówkami, z warstwą wiatrochronną (paroC Cortex, paroC WAS 25)
Dach skośny z izolacją PAROC Ultra - Ultra Plus, pokryty dachówkami
Dach skośny z izolacją paroC Ultra - Ultra Plus, pokryty dachówkami
Dach skośny z izolacją PAROC Ultra-Ultra Plus, z poszyciem z desek i pokryciem a papy
Dach skośny z izolacją paroC Ultra-Ultra Plus, z poszyciem z desek i pokryciem a papy
Dach skośny z kelanicą, ocieplony płytą PAROC Solid -Ultra Plus
Dach skośny z kelanicą, ocieplony płytą paroC Solid -Ultra Plus
Elewacja murowana, wentylowana w systemie dwuwarstwowym
Elewacja murowana, wentylowana w systemie dwuwarstwowym
Elewacja murowana, wentylowana w systemie jednowarstwowym
Elewacja murowana, wentylowana w systemie jednowarstwowym
Izolacja cieplna betonowego stropu kanałowego w garażu nieogrzewanym, zamkniętym
Izolacja cieplna betonowego stropu kanałowego w garażu nieogrzewanym, zamkniętym
Izolacja cieplna betonowego stropu kanałowego w garażu nieogrzewanym, zamkniętym
Izolacja cieplna betonowego stropu kanałowego w garażu nieogrzewanym, zamkniętym
Izolacja cieplna betonowego stropu kanałowego w garażu otwartym
Izolacja cieplna betonowego stropu kanałowego w garażu otwartym
Izolacja cieplna betonowego stropu kanałowego w garażu otwartym
Izolacja cieplna betonowego stropu kanałowego w garażu otwartym
Izolacja cieplna betonowego stropu w garażu nieogrzewanym, zamkniętym
Izolacja cieplna betonowego stropu w garażu nieogrzewanym, zamkniętym
Izolacja cieplna betonowego stropu w garażu otwartym
Izolacja cieplna betonowego stropu w garażu otwartym
Izolacja cieplna i ogniowa betonowego stropu kanałowego w garażu nieogrzewanym, zamkniętym
Izolacja cieplna i ogniowa betonowego stropu kanałowego w garażu nieogrzewanym, zamkniętym
Izolacja cieplna i ogniowa betonowego stropu kanałowego w garażu nieogrzewanym, zamkniętym
Izolacja cieplna i ogniowa betonowego stropu kanałowego w garażu nieogrzewanym, zamkniętym
Izolacja cieplna i ogniowa betonowego stropu kanałowego w garażu, otwartym
Izolacja cieplna i ogniowa betonowego stropu kanałowego w garażu, otwartym
Izolacja cieplna i ogniowa betonowego stropu w garażu nieogrzewanym, zamkniętym
Izolacja cieplna i ogniowa betonowego stropu w garażu nieogrzewanym, zamkniętym
Izolacja cieplna i ogniowa betonowego stropu w garażu otwartym
Izolacja cieplna i ogniowa betonowego stropu w garażu otwartym
Izolacja dachu betonowego w obiektach ogrzewanych
Izolacja dachu betonowego w obiektach ogrzewanych
Izolacja dachu betonowego w obiektach ogrzewanych
Izolacja dachu betonowego w obiektach ogrzewanych
Izolacja dachu betonowego z płytami lamellowymi w obiektach ogrzewanych
Izolacja dachu betonowego z płytami lamellowymi w obiektach ogrzewanych
Izolacja dachu z blachy trapezowej w obiektach nieogrzewanych
Izolacja dachu z blachy trapezowej w obiektach nieogrzewanych
Izolacja dachu z blachy trapezowej w obiektach ogrzewanych
Izolacja dachu z blachy trapezowej w obiektach ogrzewanych
Izolacja dachu z blachy trapezowej z konstrukcją pv w obiektach nieogrzewanych
Izolacja dachu z blachy trapezowej z konstrukcją pv w obiektach nieogrzewanych
Izolacja dachu z blachy trapezowej z konstrukcja pv w obiektach ogrzewanych
Izolacja dachu z blachy trapezowej z konstrukcja pv w obiektach ogrzewanych
Izolacja dachu z blachy trapezowej z płytami lamellowymi w obiektach ogrzewanych
Izolacja dachu z blachy trapezowej z płytami lamellowymi w obiektach ogrzewanych
Izolacja dachu zielonego
Izolacja dachu zielonego
Izolacja fasady wentylowanej w systemie dwuwarstwowym
Izolacja fasady wentylowanej w systemie dwuwarstwowym
Izolacja fasady wentylowanej w systemie jednowarstwowym
Izolacja fasady wentylowanej w systemie jednowarstwowym
Izolacja fasady wentylowanej w systemie jednowarstwowym, mocowana łącznikami mechanicznymi
Izolacja fasady wentylowanej w systemie jednowarstwowym, mocowana łącznikami mechanicznymi
Izolacja kanału wentylacyjnego - Paroc Hvac Lamella Mat + Fix
Izolacja kanału wentylacyjnego - paroc Hvac Lamella Mat + Fix
Izolacja kanału wentylacyjnego - Paroc Hvac Slab Alucoat
Izolacja kanału wentylacyjnego - paroc Hvac Slab Alucoat
Izolacja pionowa kanału wentylacyjnego - Paroc Hvac Lamella Mat + Fix
Izolacja pionowa kanału wentylacyjnego - paroc Hvac Lamella Mat + Fix
Izolacja pionowa kanału wentylacyjnego - Paroc Hvac Slab Alucoat
Izolacja pionowa kanału wentylacyjnego - paroc Hvac Slab Alucoat
Izolacja przeciwkondensacyjna dachu płaskiego
Izolacja przeciwkondensacyjna dachu płaskiego
Izolacja przeciwkondensacyjna dachu płaskiego
Izolacja przeciwkondensacyjna dachu płaskiego
Izolacja przeciwkondensacyjna dachu płaskiego
Izolacja przeciwkondensacyjna dachu płaskiego
Izolacja przeciwkondensacyjna dachu płaskiego
Izolacja przeciwkondensacyjna dachu płaskiego
Izolacja rurociągu - Kolano
Izolacja rurociągu - Kolano
Izolacja rurociągu - Paroc Hvac Combi Alucoat T
Izolacja rurociągu - paroc Hvac Combi Alucoat T
Powiązane produkty paroC Hvac Combi AluCoat T
Izolacja rurociągu - Paroc Hvac Section Alucoat T
Izolacja rurociągu - paroc Hvac Section Alucoat T
Powiązane produkty paroC Hvac Section AluCoat T
Izolacja rurociągu - Paroc Hvac Section Alucoat T TRZ
Izolacja rurociągu - paroc Hvac Section Alucoat T TRZ
Powiązane produkty paroC Hvac Section AluCoat T TRZ
Izolacja rurociągu - Paroc Pro Section 140 Clad
Izolacja rurociągu - paroc Pro Section 140 Clad
Powiązane produkty paroC Pro Section 140 Clad
Izolacja rurociągu - Połączenie kołnierzowe
Izolacja rurociągu - Połączenie kołnierzowe
Izolacja rurociągu - Punkt stały
Izolacja rurociągu - Punkt stały
Izolacja rurociągu - Reduktor
Izolacja rurociągu - Reduktor
Izolacja rurociągu - Trójnik
Izolacja rurociągu - Trójnik
Izolacja stropodachu z blachy trapezowej oraz ściany dwuwarstwowej
Izolacja stropodachu z blachy trapezowej oraz ściany dwuwarstwowej
Izolacja wentylowana dachu w systemie paroc air z płytami rowkowanymi
Izolacja wentylowana dachu w systemie paroc air z płytami rowkowanymi
Izolacja wentylowana dachu w systemie paroc air z płytami rowkowanymi
Izolacja wentylowana dachu w systemie paroc air z płytami rowkowanymi
Izolacja zimnego poddasza pod dachem skośnym z wdmuchiwanym granulatem PAROC BLT 9 - konstrukcja murowana
Izolacja zimnego poddasza pod dachem skośnym z wdmuchiwanym granulatem paroC BLT 9 - konstrukcja murowana
Izolacja zimnego poddasza pod dachem skośnym z wdmuchiwanym granulatem PAROC BLT 9 - konstrukcja szkieletowa
Izolacja zimnego poddasza pod dachem skośnym z wdmuchiwanym granulatem paroC BLT 9 - konstrukcja szkieletowa
Izolacja zimnego poddasza - szczegół z kalenicą i dachem skośnym
Izolacja zimnego poddasza - szczegół z kalenicą i dachem skośnym
Ocieplenie ściany zewnętrznej z izolacja lamelową PAROC Linio 80 (c, cc), wykończonej płytami ceramicznymi
Ocieplenie ściany zewnętrznej z izolacja lamelową paroC Linio 80 (c, cc), wykończonej płytami ceramicznymi
Ocieplenie ściany zewnętrznej z izolacją płytową PAROC Linio 10 (c, cc)
Ocieplenie ściany zewnętrznej z izolacją płytową paroC Linio 10 (c, cc)
Ocieplenie ściany zewnętrznej z izolacją płytową PAROC Linio 15
Ocieplenie ściany zewnętrznej z izolacją płytową paroC Linio 15
Ocieplenie ściany zewnętrznej z izolacją płytową PAROC Linio PRO (c, cc)
Ocieplenie ściany zewnętrznej z izolacją płytową paroC Linio PRO (c, cc)
Ocieplenie szkieletowej ściany zewnętrzbenj z izolacją płytową PAROC Linio PRO (c, cc), wykończonej tynkiem
Ocieplenie szkieletowej ściany zewnętrzbenj z izolacją płytową paroC Linio PRO (c, cc), wykończonej tynkiem
Ocieplenie szkieletowej ściany zewnętrznej z izolacją lamellową PAROC Linio  80(c, cc), wykończonej płytami ceramicznymi
Ocieplenie szkieletowej ściany zewnętrznej z izolacją lamellową paroC Linio 80(c, cc), wykończonej płytami ceramicznymi
Ocieplenie szkieletowej ściany zewnętrznej z izolacją płytową PAROC Linio  (c, cc), wykończonej tynkiem
Ocieplenie szkieletowej ściany zewnętrznej z izolacją płytową paroC Linio (c, cc), wykończonej tynkiem
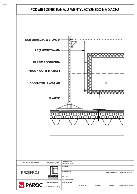
Podwieszenie kanału wentylacyjnego na dachu
Podwieszenie kanału wentylacyjnego na dachu
Przejście kanału wentylacyjnego przez ścianę
Przejście kanału wentylacyjnego przez ścianę
Przejście kanału wentylacyjnego przez strop
Przejście kanału wentylacyjnego przez strop
Przejście rury przez dach - Paroc Hvac Section Alucoat T
Przejście rury przez dach - paroc Hvac Section Alucoat T
Powiązane produkty paroC Hvac Section AluCoat T
Przejście rury przez ścianę - Paroc Hvac Section Alucoat T
Przejście rury przez ścianę - paroc Hvac Section Alucoat T
Powiązane produkty paroC Hvac Section AluCoat T
Ściana szkieletowa z izolacją płyty PAROC ULTRA PLUS
Ściana szkieletowa z izolacją płyty paroC ULTRA PLUS
Ściana szkieletowa z izolacją z płyty PAROC  SOLID
Ściana szkieletowa z izolacją z płyty paroC SOLID
Ściana szkieletowa z izolacją z płyty PAROC ULTRA
Ściana szkieletowa z izolacją z płyty paroC ULTRA
Ściana szkieletowa z wentylowaną fasadą ceglaną
Ściana szkieletowa z wentylowaną fasadą ceglaną
Szczegół izolacji ściany szkieletowej i cokołu
Szczegół izolacji ściany szkieletowej i cokołu
Szczegół połączenia ściany szkieletowej z dachem dwuspadowym o zimnym poddaszu
Szczegół połączenia ściany szkieletowej z dachem dwuspadowym o zimnym poddaszu
Szczegół połączenia ściany szkieletowej z ocieplonym dachem dwuspadowym
Szczegół połączenia ściany szkieletowej z ocieplonym dachem dwuspadowym